岡崎市の小商い可能なデザイナーズ賃貸物件のご紹介


     
TOP 物件紹介周辺マップ 空室情報 設計〜完成 内見・入居等に関するお問い合わせ
 

  2023.1.28

 
'23.1時点のスケジュールです。
そろそろ施工会社を決めなければなりませんが、
建築費と入居者の家賃は連動するため、良心的な価格の業者を慎重に選ぶ必要があります。
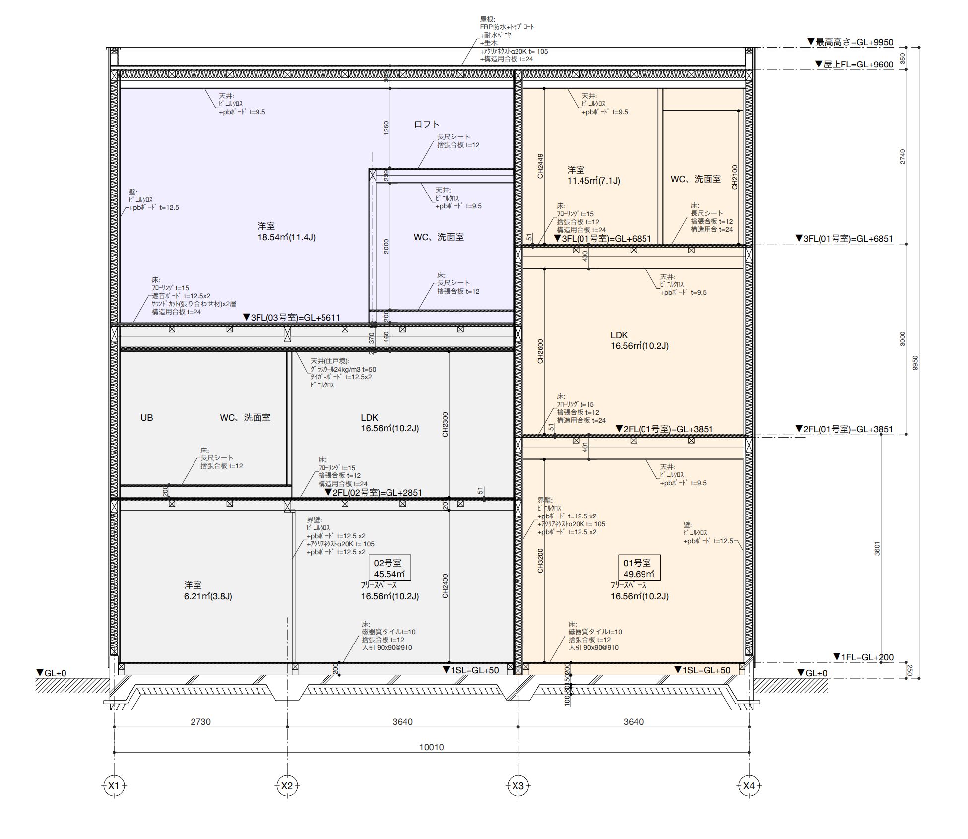
平面図もだいぶ固まって来ました。全て同一だと面白くないため、各戸で特徴の異なる部屋割にしています。
A棟の断面図です。
Copyright © 2022 てるてるはうず All rights reserved.